Rivian R1S 2023-2029 Body dimensions

Body dimensions for restoring the body geometry of Rivian R1S 2023-2029. With the help of this information, you can check the geometry of the damaged body, as well as carry out restoration work on the straightening of cars.
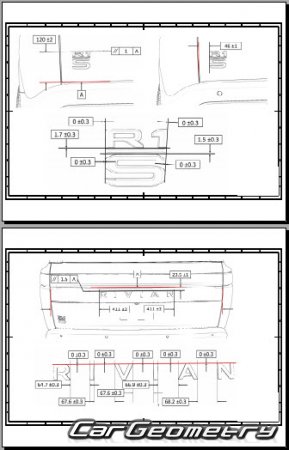
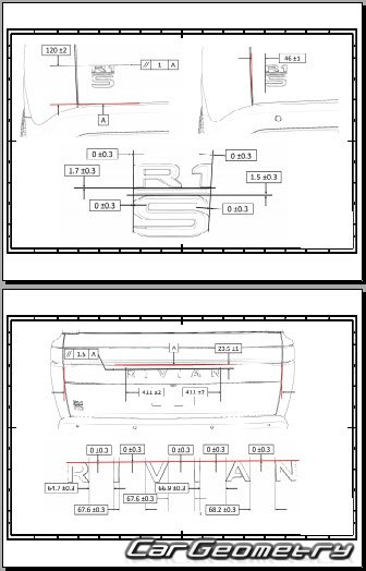
Selection from factory documentation and vehicle measurement database for Rivian R1S 2023-2029: body dimensions and geometry measurement points (chassis diagrams, upper body datasheet, underbody datasheet).
Upperbody dimensions include pillar widths for inside passenger compartment, door, windshield and rear window. Choice of Edge-of-hole or center-of-hole dimensions, widths measured from centerline and individual datum lengths for underbody information, diagonal measurements, deck lid measurements for more extensive and complete collision repairs.
Data sample from the archive
Download vehicle dimensions Rivian R1S 2023-2029
Price: $35























