Toyota 4Runner & 4Runner HV from 2025 Collision shop manual

Toyota 4Runner (TZNA50 TZNA55 TZNH55) from 2025 Collision Repair manual is a comprehensive guide that provides in-depth information and instructions for repairing and restoring the body of the Toyota 4Runner with left-hand drive. The manual includes step-by-step repair procedures for various body panels and components, ensuring accurate and efficient collision repairs.
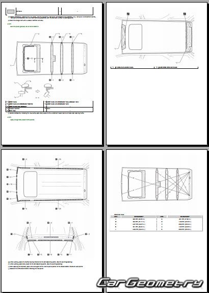
One of the key features of the manual is its coverage of body dimensions and control points. These dimensions provide precise measurements of the vehicle's body components, allowing technicians to accurately assess any deviations from the original specifications. The control points serve as reference points for checking the alignment and geometry of the vehicle's body, ensuring that repairs are carried out with precision.
The manual features diagrams and illustrations that depict cross-sections of body elements, aiding in visualizing the structural composition and facilitating the repair process. It also covers cutting procedures and directions for removing and installing new body components, ensuring accurate and efficient repairs.
Overall, the Toyota 4Runner & 4Runner HV Bodyshop Manual, spanning over 382 pages in English, is an indispensable resource for body repair technicians and individuals involved in the repair and restoration of Toyota 4Runner. It contains a wealth of useful and necessary information to ensure precise and reliable body repairs in accordance with the manufacturer's recommendations.
Data sample from the archive
Download Factory manual for body repair and body dimensions
Toyota 4Runner (TZNA50 TZNA55 TZNH55) from 2025
Toyota 4Runner (TZNA50 TZNA55 TZNH55) from 2025
Price: $40








































